Leave a Message

By providing your contact information to Collin Taylor - Main Site, your personal information will be processed in accordance with Collin Taylor - Main Site's Privacy Policy. By checking the box(es) below, you consent to receive communications regarding your real estate inquiries and related marketing and promotional updates in the manner selected by you. For SMS text messages, message frequency varies. Message and data rates may apply. You may opt out of receiving further communications from Collin Taylor - Main Site at any time. To opt out of receiving SMS text messages, reply STOP to unsubscribe.

Thank you for your message. I will be in touch with you shortly.

Explore My Properties

Property Description

Discover unparalleled mountain luxury in Holly Berry Estates, a serene 430-acre private community nestled at the base of Whiteside Mountain in the heart of North Carolina's Blue Ridge. This exceptional 4-bedroom, 4-bath home is perfectly positioned between the charming towns of Highlands and Cashiers, offering the ultimate blend of privacy, convenience, and authentic mountain living.

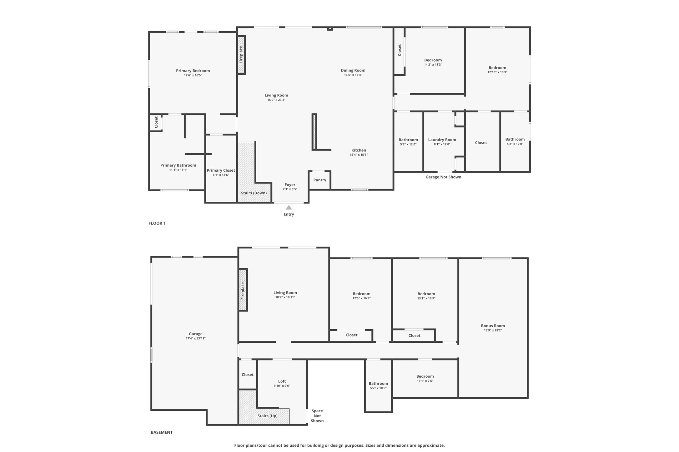
The main level welcomes you with a premium open-concept design, showcasing rich Brazilian Cherry hardwood floors that flow throughout the expansive living spaces. The chef's kitchen impresses with beautiful granite countertops, while the spacious living area features a dramatic stone wood-burning fireplace beneath soaring vaulted ceilings accented with warm wooden beams.

This level includes two primary suites for ultimate convenience and a versatile bonus room--ideal for a home office, den, or additional sleeping quarters. Step outside to the generous covered deck, where you can savor sweeping mountain and lake views of pristine Holly Berry Lake. Whether enjoying your morning coffee or hosting evening gatherings, this deck is the perfect vantage point to take in the beauty of the Blue Ridge Mountains.

The lower level expands your living options with additional bonus rooms, a second full living room, a second kitchen, and a large recreation room--perfect for guests, multigenerational living, or entertaining.

Additional highlights include a 2-car garage on the main level, plus an extra garage and shop on the lower level, providing ample space to store your UTV or side-by-side. The home sits on a private 1.59-acre lot with room to roam and enjoy cool mountain summers, plus access to your very own private dock on Holly Berry Lake.

The property features a 22kW Generac generator, ensuring year-round comfort and peace of mind. Holly Berry Estates offers two private lakes ideal for swimming, fishing, canoeing, and picnicking, along with scenic hiking and biking trails. These trails wind through the community and connect to adjacent Nantahala National Forest lands, offering stunning views of Whiteside Mountain and access to its breathtaking rock face.

Overview

Property Status
For Sale
Lot Size
1.59 Acres
MLS ID
1002934
Property Type
Residential
Year Built
2016

Features & Amenities

Neighborhood
Highlands
Water Frontage
Lake Front, Deeded Access, Waterfront
View Description
Lake, Mountain(s)
Stories
2
Garage Spaces
3.0
Water Source
Private
Utilites
Electricity Connected, Fiber Optic Available, Propane, Water Connected
Roof
Asphalt, Shingle
Lot Features
Gentle Sloping, Views, Waterfront, Rolling Slope
Parking
Additional Parking, Asphalt, Garage Faces Front, Garage, One Car Garage, Two Car Garage, Garage Door Opener, Inside Entrance, Garage Faces Side
Heat Type
Central, Gas
Air Conditioning
Central Air, Electric, Zoned
Laundry Room
Washer Hookup, Dryer Hookup, Main Level, Laundry Room
Fireplace
Gas Starter, Great Room, Living Room, Wood Burning
Appliances
Dryer, Dishwasher, Exhaust Fan, Gas Cooktop, Disposal, Microwave, Oven, Refrigerator, Washer
Other Interior Features
Beamed Ceilings, Breakfast Bar, Ceiling Fan(s), Chandelier, Double Vanity, Entrance Foyer, Eat-in Kitchen, Granite Counters, High Ceilings, Kitchen Island, Open Floorplan, Pantry, Storage, Vaulted Ceiling(s), Bar, Walk-In Closet(s), Workshop
Sewer
Sewer Applied for Permit, Septic Tank
HOA Amenities
Park, Trail(s)
Other Exterior Features
Dock, Gas Grill, Private Yard, Rain Gutters, Storage
Sales Price
$2,499,500
Real Estate Tax
$6,552/yr
HOA
$1,350/yr

Downloads

577 Twin Lakes Drive

Schedule a Tour

I would love to help you see this beautiful home! As a full-service brokerage, I can help you tour. Please submit an offer, and answer questions about the buying process.

Thank you

for your interest in 577 Twin Lakes Drive, Highlands, NC 28741

577 Twin Lakes Drive
Navigate
Highlands

Explore Highlands

read more
577 Twin Lakes Drive
explore in 3d

Mortgage Calculator

Estimate your monthly mortgage payment, including the principal and interest, property taxes, and HOA. Adjust the values to generate a more accurate rate.
$0,000 Your Payment 20 15 65
$0,000 Your Payment

I'm Interested In

577 Twin Lakes Drive

or
  • CallCollin Taylor

    License #308774

    (828) 508-9878
  • Follow Us On Instagram